A propos
Devenez propriétaire de votre appartement neuf, du T2 au T4, avec balcon ou terrasse, avec au cœur d’un écoquartier
L'écoquartier© RémaVert, choisir un mode de vie durable et responsable
Vivre dans un écoquartier, c’est penser la ville et son quotidien autrement, prendre en compte le respect de l’environnement, réduire l’impact sur la nature, laisser davantage d'espace aux voies douces pour piétons, vélos…
Primé dans le cadre du 1er concours écoquartier organisé par l’État dans le palmarès Écoconstruction, et engagé dans la démarche de labellisation nationale, l’écoquartier RémaVert invente l’immobilier durable et vous place au cœur d’un programme unique à Reims
L'esprit nature
Les façades habillées de bois soulignent la singularité d’une architecture moderne, résolument tournée vers la nature. Construits avec des matériaux de qualité, pour une longévité et une résistance optimales, les 20 appartements déclinés du 2 au 4 pièces dévoilent des espaces de vie spacieux, dotés d’une luminosité naturelle incomparable. Dans le prolongement naturel des séjours, terrasses et balcons offrent une délicieuse respiration. Au pied de la résidence, un jardin d’agrément arboré commun à l’ensemble des résidents comblera votre besoin de plein air.
Des prestations pensées pour votre confort
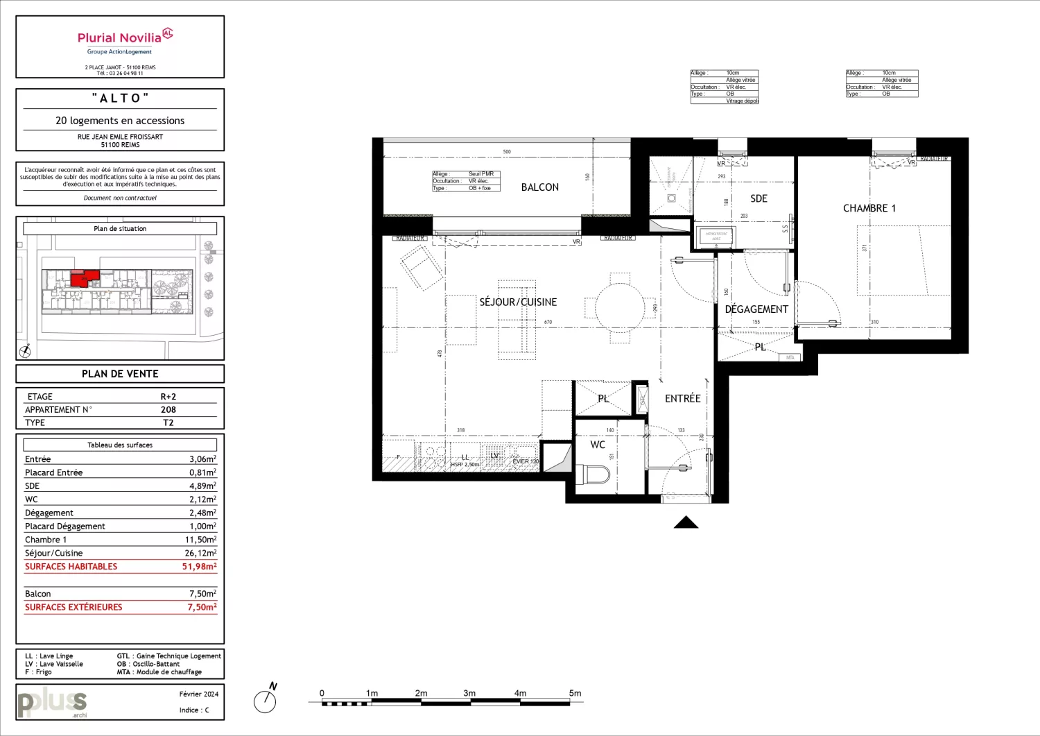
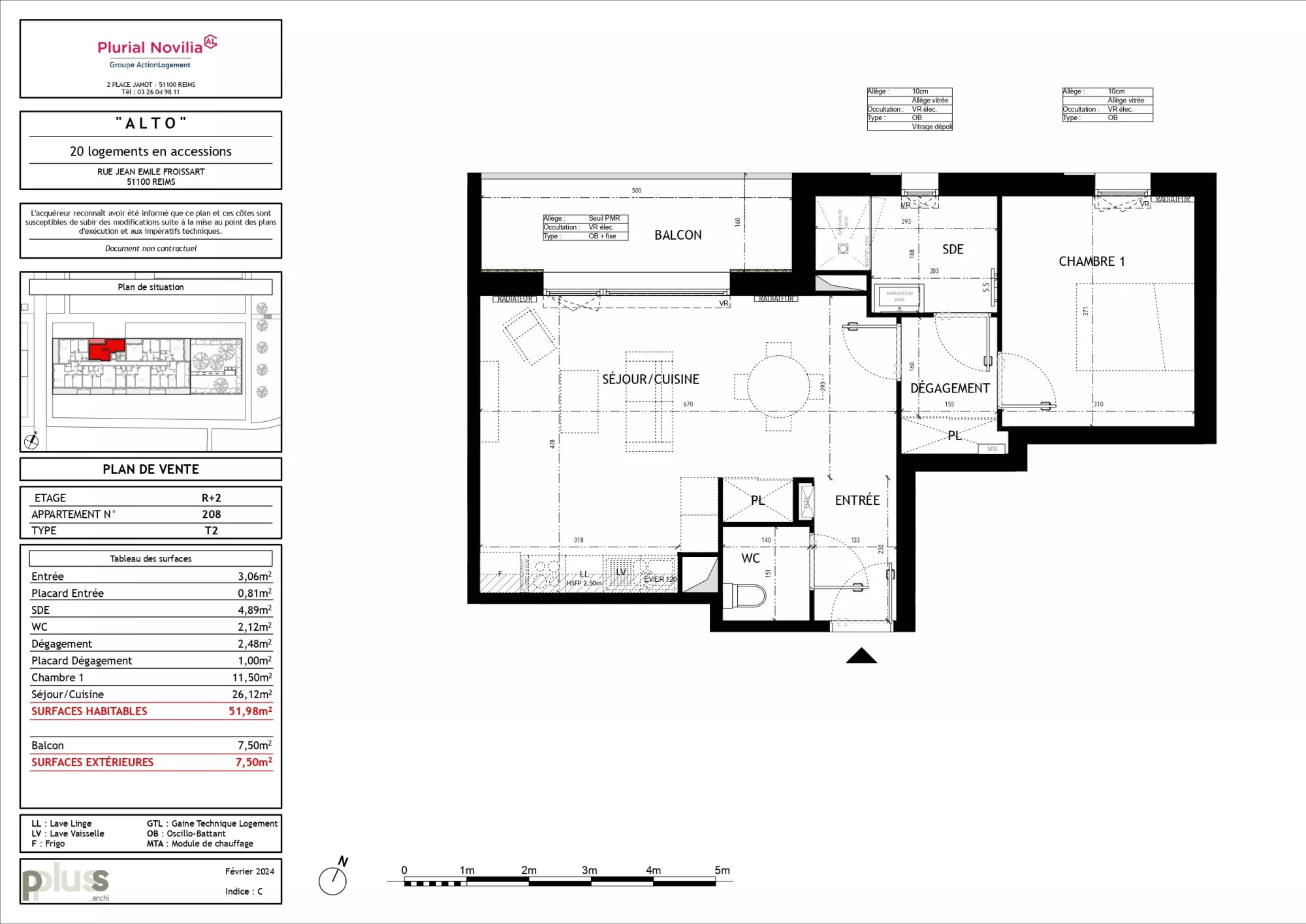
- Résidence sécurisée comprenant 20 appartements, de 2 à 4 pièces, de 49 à 90 m²
- Carrelage dans les pièces à vivre et les pièces humides
- Salles de bain et salles de douche équipées avec meuble vasque, miroir éclairé, sèche serviette et faïence murale
- Volets roulants motorisés
- Balcons ou terrasses pour tous les logements
- Parking sécurisé avec boxes et places de stationnement
- Local à vélos
- Ascenseur
- Espace vert commun clos, engazonné et arboré, avec composteur
- Résidence raccordée à un réseau de chaleur biomasse
- Aire de jeux, espaces verts et commerces à proximité immédiate de la résidence
- Performance énergétique RE2020
- Système de chauffage et de production d'eau chaude sanitaire à énergie renouvelable
- PTZ
- RT 2020
- TVA réduite










