A propos
Au cœur d’un ensemble résidentiel verdoyant et arboré, s’élevant le long du chemin de halage, la résidence Les Eaux Belles dévoile une architecture aux lignes épurées, résolument contemporaine. Terrasses et balcons fleurissent en façades, comme une invitation à prendre l’air et profiter des rayons de soleil…
-- TRAVAUX EN COURS --
Baignés de lumière naturelle grâce à leurs larges ouvertures, les appartements du studio au 4 pièces offrent un confort optimal. Les intérieurs, agencés avec le plus grand soin, séduiront le plus grand nombre grâce à leurs pièces de vie conviviales, prolongées par des cuisines ouvertes et leurs espaces nuit invitant au repos.
Les prestations intérieures de qualité viennent agrémenter l’ensemble avec élégance. Matériaux et équipements, soigneusement sélectionnés, vous offriront sécurité et confort au quotidien.
Des prestations pensées pour votre confort
- Résidence close avec aménagement paysager
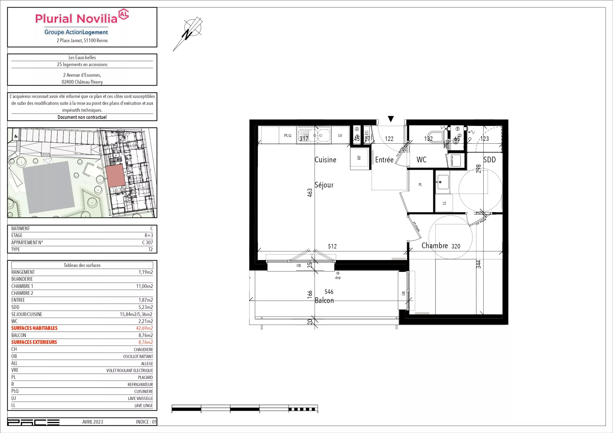
- 25 appartements du T1 au T4
- Terrasses et balcons
- Salle de bain et salle de douche équipées avec meuble vasque, miroir éclairé, sèche serviette et faïence murale
- Volets roulants motorisés
- Chauffage électrique pour les studios
- Chauffage individuel au gaz du T2 au T4
- Ascenseur desservant chaque niveau
- Parking couvert et parking aérien sécurisés
- Location - Accession
- RT2012-10%











